Business

Pinckney Retreat developer eyes Harvey Tract along Battery Creek

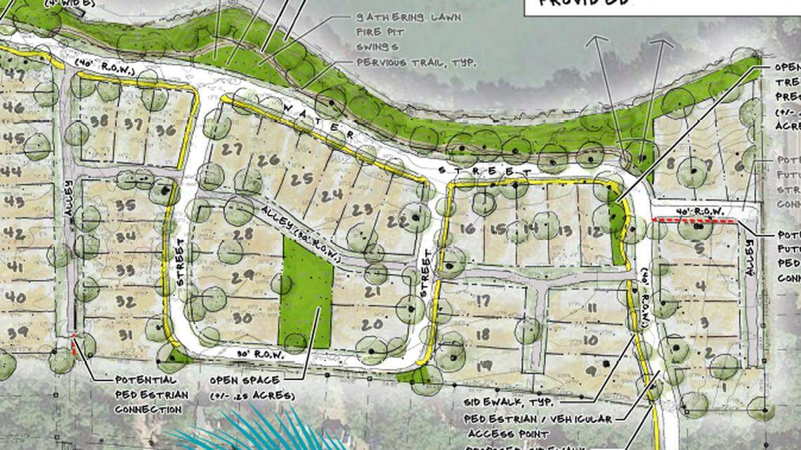
Detail of a map in East West Communities' plan for City Walk, a new neighborhood in Beaufort fronted on Battery Creek east of Huguenin Drive.
Detail of a map in East West Communities' plan for City Walk, a new neighborhood in Beaufort fronted on Battery Creek east of Huguenin Drive. Witmer Jones Keefer Ltd.

East-West Communities, the developer behind Pinckney Retreat in Port Royal, is considering building a 47-lot community in the West End neighborhood of Beaufort.

According to conceptual plans filed with the city and staff review information, City Walk would consist of single-family homes and a park along Battery Creek. The 11.8-acre property behind Oaklawn Avenue, off North Street, is known locally as the Harvey Property.

The land has 1,200 feet of waterfront, where a Battery Creek park would be, according to the conceptual plans. A quarter-acre park would be in the middle of the subdivision, according to the plans. The waterfront park may have a trail, as well as amenities such as a fire pit or swings.

Lot sizes would vary to help preserve open space, and lots and roads would be adjusted to help save live oaks, according to the pre-application.

City Walk would connect to Huguenin Drive, Beckley Street, and Water Street.

Homes would have porches facing the roads and rear alleys for vehicles. Sidewalks and on-street parking on one side of the road are included in the conceptual designs.

City Walk is on the agenda for discussion at the 5 p.m. Monday Joint Metropolitan Planning Commission meeting.

The proposal is along the lines of what the city's Civic Master Plan envisions. It shows a residential community with a waterfront park on the property with a pier, as well as a multi-use walking/biking path that could loop around Battery Creek.

East-West Communities bought Pinckey Retreat, a gated community, out of foreclosure in 2010 and celebrated a grand "re-opening" in 2012. Most of the lots have been sold.

Follow reporter Erin Moody at twitter.com/IPBG_Erin.

Related content:

This story was originally published January 9, 2015 at 12:39 PM with the headline "Pinckney Retreat developer eyes Harvey Tract along Battery Creek."

Get unlimited digital access
#ReadLocal

Try 1 month for $1

CLAIM OFFER